以民族教育事业为己任
赛比尔培训老师直接接听
微信扫码拨号
培训内容有:室内、景观、广告、网页、三维装饰,环境艺术、园林、动画设计,模具、办公文秘培训等
由大学专业老师授课、多年丰富的教学经验
有需求学员
打造华中地区、具有影响力、很有特色的专业艺术设计培训实战基地
【武汉赛比尔电脑培训】:武汉CAD室内装饰、工程建筑、家具设计CAD培训、武昌装饰cad绘图就业培训、武汉机械cad培训、武汉建筑cad培训、武汉cad产品设计培训、武汉工程绘图cad培训、武汉cad装饰设计培训、武汉cad水电制图培训、
Cad的教学优势:
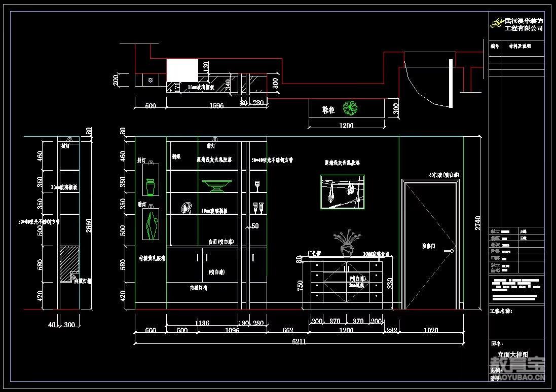
1、教学内容广泛,包括平、立、剖、大样详图、天花图、电路图等。
2、涉及面更广,知识面更全,可建筑室内外、园林、机械等。
3、利用定制模板绘图,大大提高工作效率。
cad学习内容:
1、培训学习cad各种绘图和编辑命令
2、图层操作,科学的分层及分色方案
3、学习设计中心及工具选项板,定制绘图模板,提高工作效率
4、平、立、剖面,以及局部大样图纸实例操作
5、打印输出
【武汉cad培训教学大纲】:学制 30天
1、CAD基础及施工图、工程图,机械剖面,园林景观等的平面图、立面图、剖面图等绘制
2、CAD高级:绘制复杂的工程图,和种三维立体图。
3、 机械CAD技术培训专业 适合:各类机械行业
2、 阀门CAD技术培训专业 适合:阀门行业
3、 建筑CAD技术培训专业 适合:建筑行业
4、 室内装饰CAD技术培训专业 适合:室内装饰设计行业
5、 电气CAD技术培训专业 适合:电子电气行业
6、 服装CAD技术培训专业 适合:服装行业
【核心课程】:武汉cad培训课程:
AutoCAD计算机辅助制图软件,广泛运用于建筑、工程制图、工业制图、服装制版、印刷电路板设计、土木建筑、装饰装满、城市规划、园林设计、电子电路、机械设计、服装鞋帽、航空航天、轻工化等诸多领域。我们将以AutoCAD二维绘图命令、绘图的辅助手段、多线、文字、图块、建筑尺寸标注等功能的运用为基础,详细讲解建筑总平图、平面图、立面图、剖面图、大样图、电气布局图、室内装饰布局图等的制作过程。以及CAD中基础的三维建模、赋材质、加灯光和渲染的全部流程。后期讲解室内人体工程学、图家制图标准及建筑图例解释;线型规定、打印比例。
武汉好的CAD培训班
学习,应使学员对AutoCAD有较深的认识并掌握以下功能:
1、掌握二维图形的绘图方法,编辑方法和尺寸标注方法,能够运用工具栏的工具及快捷命令绘制中等难度的工程图(包括建筑图、机械图或其它图形)。
2、掌握二维绘图的高级编辑方法
3、掌握三维图形的绘制方法(如用户坐标系)和三维面、三维实体的绘制并方法,并能运用这些方法绘制简单的组合体。并了解三维实体的渲染。
4、工作流程介绍、实地测量、按测量数据快捷绘制结构图
5、按国家制图规范标注、文字、按打印打求进行图框整理
6、建筑常见平面布置图、天花布置图绘制方法与技巧
7、内立面图、外立面图绘制方法与技巧
5、剖面图、节点大样图绘制方法与技巧
6、园林规划平面图绘制方法与技巧
7、三维制图(如三维家具、三维建筑效果图)
8、水电图、整理方案、打印技巧、竟标方案的设计
AUTOCAD家装室内设计制图与建筑设计制图
本课程详细讲解了创建室内绘图模板、绘制墙体详图、绘制客厅详图、绘制卧室详图、绘制家具详图、绘制地面详图、绘制电气详图、绘制强电系统图、尺寸标准学习等多个实例家装绘图课程,运用众多典型软件设计使用技巧,重点提升你的AutoCAD建筑设计图制作能力。
1、AUTOCAD
第1讲 界面介绍,基本操作方法,坐标(可以用直线做实例)
第二讲 对象捕捉,极轴追踪,正交捕捉(用矩形,圆等做例)
第三讲 绘图命令补充(构造线、弧等)
第四讲 多线(样式,创建,编辑)
第五讲 生成新对象命令(复制、镜象、阵列、倒角)
第六讲 修改命令(修剪、打断、延伸、拉长等)
第七讲 图层、样板、填充
第八讲 实例(结合讲图形类别、结构、平立剖)
第九讲 文字、标注及命令的自定义
第十讲 块(创建、内外部块、插入编辑块),设计中心,贴图
第十一讲 出图(打印布局)
第十二讲 实例(综合作图流程)
本课程围绕家装设计模板的设置,CAD资源的高级管理与应用;CAD在装饰装潢方面的应用;绘制专业施工图纸的方法技巧等;三维建筑模型的制作方法和建模技巧;数据交换和图形的精确打印;软件设计中快捷功能键的使用等内容的细致讲解,全面系统的提升你的CAD制图水准。
【就业方向】:房地产、建筑工程、装饰装修、广告制作等从事三维图形设计、室内室外装饰设计以及效果图设计、建筑景观设计。CAD机械图设计三维图形设计.
【开课时间】:随到随学、常年循环开设、早班、下午班、晚班、周末班、还有短期班、
【联系地址】:武昌街道口未来城E座26楼5室
【武汉赛比尔官网】: htt***************com/
【咨 询】: 魏老师
欢迎报名咨询:实力的见证赛比尔、


































专业解答各类课程问题、介绍师资和学校情况
微信号:138******86
小班
请询价
小班
请询价
小班
请询价
小班
请询价
小班
请询价
小班
请询价
小班
请询价
小班
请询价
小班
请询价
小班
请询价
小班
请询价
小班
请询价
「武汉赛比尔电脑培训」 是武汉市洪山区赛比尔电脑培训部在教育宝平台开设的店铺,若该店铺内信息涉嫌虚假或违法,请点击这里向教育宝反馈,我们将及时进行处理。
环境:4.0师资:4.0服务:4.0效果:4.0
店铺名称:武汉赛比尔电脑培训
单位名称:武汉市洪山区赛比尔电脑培训部
账号名称:whsbe(138******86)
所属城市:湖北武汉
入驻时长:13年会员
联系电话:400-029-0997 转 7425
武汉cad施工图、立面图、机械剖面图培训
武汉CAD机械二维三维制图培训
武汉室内装饰cad二维三维机械制图培训
武汉CAD机械、装饰、弱电、建筑天正培训
武汉cad机械制图就业培训、cad培训